“致敬中国设计力量”设计师肖丽近日重磅启动!项目由搜狐集团发起,室内设计师协会专业指导、搜狐家居和搜狐焦点设计联合主办,优选中国室内家装设计师,赋能城市美好人居生活!
【设计理念】设计源于生活,生活又源于每一个人的内心,设计便是把内心的美好呈现出来,而我从未停止为你设计美好画面的步伐。
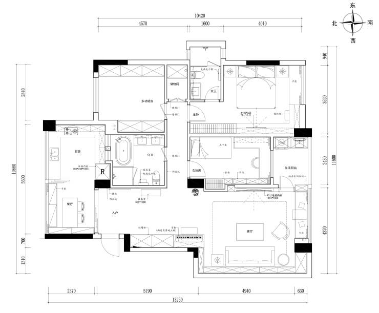
【项目介绍】
项目名称:深圳花半里
入门即见玄关,材质与光影组合的自然气息蕴染底调,功能隐藏在二维视野与三维格局里。鞋帽柜旁边正好可以嵌入一架钢琴,对面是正在生长的绿植和行走的时间,在简单的画面里,用一曲旋律应对岁月匆匆,温柔至极。
原始户型实际使用面积有限,设计延伸平面,扩展格局,增加功能分区,有效利用空间;打通原先的厨房,连通另一个空间改造成大的公卫,原先放杂物的地方设计为餐厅&厨房一体,不仅操作空间变大了,采光也很好;
将户外阳台花园纳入,做独立书房,花草盆栽移到另一侧,并在书房留了一扇门,在工作学习之余,也依然可以享受休闲惬意的生活方式。
软装色彩的搭配延伸木色主调,线条曲缓并叙,简洁而舒适让在被消磨了一整天的精神逐渐放松下来。从客厅到餐厅、从黑白灰到木色、橙色,从一株草木到一幅画作,玄关就像一个缓冲区,是进入家门后带来的轻松感,是穿行动线时自然而生的欢喜。
餐厅和厨房这里原本是空的,因面积有限,利用起来作一区,用玻璃门做隔断,还将整面外墙都设计成大面积半窗形式,保证了就餐环境与光线。
夜幕降临,床头吊灯与原木散发着温和细腻的气韵,点缀空间,仿佛也让时间变得缓慢,放松,回归到自我的世界。
